熱線電話
13040700003
手機掃碼訪問
①針對干燥行業、鍋爐行業、清洗行業、涂裝行業、食品烘干行業配套而研發的耐高溫離心風機。
②輸送的氣體為空氣或其他不自燃、不自爆、無纏繞性、對人體無害、對鋼鐵材料無腐蝕的氣體。也可為各行業輸送無腐蝕性、不自燃、不含粘性物質的熱氣、蒸汽、煙氣。其它性能相近的也可以選用,但輸送介質的溫度不得超過它的額定溫度范圍。
③氣體內不能有粘性物質,所含的塵土及硬質顆粒不大于150mg/m3,如果含塵量大,在風機前必須加裝準備就緒不低于85%的除塵裝置,降低進入風機的煙氣含塵量,有利于提高風機壽命。
①此類風機有兩種形式。從電機一側正視,葉輪順時針旋轉的稱為右旋風機,以“右”表示;葉輪逆時針旋轉的稱為左旋風機,以“左”表示。
②風機的出口位置,以機殼的出風口角度表示。風機出廠時均做成一種可調型式,使用單位根據要求在安裝成所需要的位置。出風口位置調整范圍是0°-255°,間隔是45°。傳動方式均為“A”式直聯傳動。
①風機主要由葉輪、機殼、進風口、電機、連接器、散熱風葉等部分組成。
②進風口采用收斂流線型減渦形式,氣流損失較小,風機的工作效率高。
③TSN-E型風機葉輪由12個前彎型葉片、曲線形前盤和平板型后盤組成。材料用強度高、耐用性好的優質鋼板制造,并經嚴格的動靜平衡校正??諝庑阅芰己茫矢撸\轉平穩。
④風機機殼與電機以金屬鑄件安裝連接,電機軸頭上安裝散熱楓葉,金屬鑄件的外壁開設進、出水管接頭,對金屬鑄件與軸頭進行降溫,確保電機在高溫下正常運行。
⑤其電機機采用特殊高溫電機,風機流體部分采用耐溫材料,降溫結構性可靠。相比其它鍋爐引風機,TSN-E型結構簡單,維護方便,性價比高等優點。
⑥風冷式使用溫度≤180℃。水冷式使用溫度≤230℃。
| 類 型 | 機 號 | 功 率 | 轉 速 | 流 量 | 全 壓 |
| (TSN-) | (Kw) | (r/min) | (m3/h) | (Pa) | |
| E1 | 1.5 | 2900 | 552-1142 | 1908-1732 | |
| E2 | 2.2 | 2900 | 824-1264 | 2986-2997 | |
| E3 | 3 | 2900 | 1410-1704 | 2922-2710 | |
| E4 | 4 | 2900 | 1174-2062 | 3835-3705 | |
| E5 | 5.5 | 2900 | 2281-2504 | 3580-3426 | |
| E6 | 7.5 | 2900 | 2254-3488 | 4698-4232 |


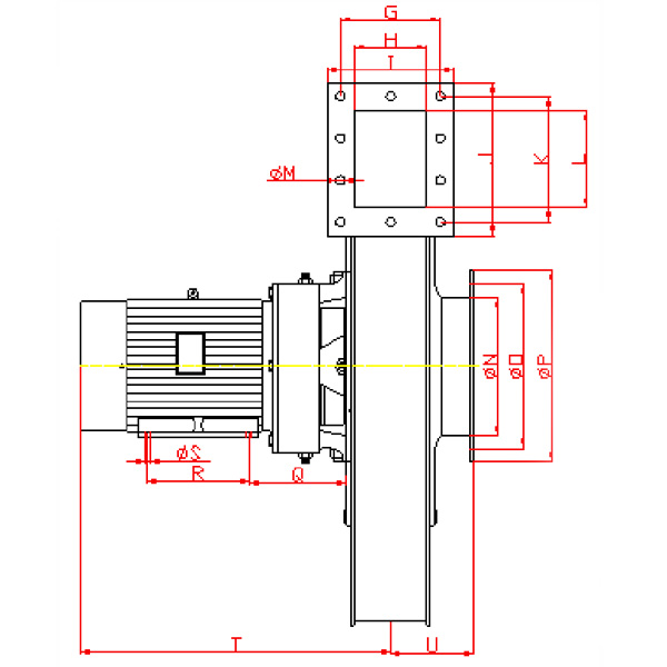
| 型 號 | A | B | C | D | E | F | G | H | I | J | K | L |
| E1 | 545 | 238 | 230 | 585 | 90 | 140 | 116 | 81 | 145 | 175 | 144 | 111 |
| E2 | 605 | 270 | 300 | 654 | 90 | 140 | 128 | 92 | 155 | 190 | 162 | 127 |
| E3 | 605 | 270 | 300 | 654 | 100 | 160 | 128 | 92 | 155 | 190 | 162 | 127 |
| E4 | 675 | 308 | 310 | 735 | 112 | 190 | 141 | 104 | 170 | 210 | 180 | 143 |
| E5 | 675 | 308 | 310 | 735 | 132 | 216 | 141 | 104 | 170 | 210 | 180 | 143 |
| E6 | 745 | 338 | 370 | 810 | 132 | 216 | 150 | 115 | 180 | 225 | 195 | 159 |
| 型 號 | M | N | O | P | Q | R | S | T | U | |||
| E1 | 10 | 158 | 188 | 218 | 156 | 100 | 10 | 406.5 | 91 | |||
| E2 | 10 | 180 | 210 | 240 | 156 | 125 | 10 | 437.28 | 104 | |||
| E3 | 10 | 180 | 210 | 240 | 163 | 140 | 12 | 472.3 | 104 | |||
| E4 | 10 | 203 | 233 | 263 | 170 | 140 | 12 | 498 | 117 | |||
| E5 | 10 | 203 | 233 | 263 | 189 | 140 | 12 | 553 | 117 | |||
| E6 | 10 | 225 | 255 | 285 | 189 | 140 | 12 | 559 | 130 |




品質包期為一年,終生維修。
在質保期內,我方會在接到用戶通知后4-6小時內作出報修響應,并在某24-72小時內免費提供維修服務,調整或更換有缺陷零部件或設備。在保修期間,根據用戶需要,如需要到現場進行維修的只收取工本費。為用戶提供分析系統的升級服務。
當客戶在設備出現問題或故障后需要尋求幫助,首先可以通過熱線電話或網絡請求幫助和指導,客戶服務部在確認客戶的服務請求后,將安排技術人員在規定的時間內通過電話幫助客戶進行故障定位,并提交解決方案,終指導客戶解決問題或排除設備故障。
客戶在使用設備時遇到疑難或者設備出現不正常狀態,通過電話或傳真向公司尋求技術支持和幫助,客戶服務部在確認客戶的請求后,如果不能通過熱線電話服務解決設備的技術故障,在經過雙方商議后確定需要進行現場故障排除的情況下,客戶服務部指派工程師在承諾的時間內赴現場分析故障原因,制定故障排除方案,并終排除故障。
工程師在完成現場服務后,應針對本次故障出現的原因和故障排除方法對客戶進行現場培訓,同事對客戶再使用過程中遇到的問題進行技術交流,以便客戶以后能夠獨立排除類似的設備故障。
在節假日(國家法定節假日)期間,除繼續開通服務熱線外,安排服務工程師值班,使客戶在設備使用過程中出現問題時能夠及時得到服務支持,為客戶提供周到體貼的服務。

浙江省金華市金東區孝順鎮低田工業區三伍廠內